Župni dvor i crkva sv. Marije Magdalene u Selima kod Siska
Monumentalna crkva sv. Marije Magdalene u Selima građena je od 1759. do 1765. godine na posjedu pod patronatom zagrebačkoga Kaptola, a iza njezina svetišta, uz cestu Zagreb – Sisak, podignuta je barokna kurija župnog dvora. Kompleks ima visoku arhitektonsku vrijednost te je, kao i pripadajući inventar, zaštićeno kulturno dobro.

Monumentalna crkva sv. Marije Magdalene u Selima građena je od 1759. do 1765. godine na posjedu pod patronatom zagrebačkoga Kaptola, a iza njezina svetišta, uz cestu Zagreb – Sisak, podignuta je barokna kurija župnog dvora. Kompleks ima visoku arhitektonsku vrijednost te je, kao i pripadajući inventar, zaštićeno kulturno dobro.
S obzirom na teška oštećenja kompleksa u potresu iz prosinca 2020. godine, Sisačka je biskupija za propisane mjere zaštite u 2022. godini sklopila ugovore s Hrvatskim restauratorskim zavodom za konzervatorsko-restauratorske istraživačke radove i izradu elaborata (voditeljica istraživanja: dr. sc. Krasanka Majer Jurišić, Odsjek za konzervatorsku dokumentaciju nepokretne baštine, Služba za nepokretnu baštinu) te izradu projektne dokumentacije (projektantica: Ana Škevin Mikulandra, Odjel za graditeljsko naslijeđe, Služba za nepokretnu baštinu).
Prema ugovorenim obavezama, a u cilju boljeg poznavanja povijesti izgradnje, uređenja i naknadnih preinaka crkve i župnog dvora u Selima, izrađeni su povijesni pregledi temeljeni na dostupnoj literaturi, arhivskim izvorima i konzervatorskoj dokumentaciji te su obavljena konzervatorsko-restauratorska istraživanja. Istraživanja su obuhvatila analizu oblikovanja i prostornog rasporeda, izradu fotodokumentacije, uvid u stanje građevina, laboratorijska ispitivanja materijala, sondiranje naliča, žbuka i građe, pregled i analizu zidnih slika, inventara i opreme te elemenata završnog oblikovanja, kao i izradu grafičkih priloga. Arhitektonska dokumentacija postojećeg stanja i grafički prilozi izrađeni su na podlogama (snimku izradili: Skimi64, Trnovec B., 2022. godine) koje je HRZ-u ustupila Sisačka biskupija.
Projektna dokumentacija izrađena je u skladu sa smjernicama iznesenima u elaboratima. Za crkvu sv. Marije Magdalene u pravilu je predviđeno vraćanje u stanje prije potresa uz manje preinake (s obzirom na to da je crkva recentno obnovljena), dok je za župni dvor određena prenamjena u čuvaonicu umjetnina Sisačke biskupije.
Crkva sv. Marije Magdalene osobita je po izraženom dinamizirajućem odnosu svojih volumena, ovalnoj lađi i kupoli s lanternom, plitko zaobljenog svetišta (uz koje je sa sjeverne strane dograđena dvokatna sakristija pravokutnog tlocrta) te po naglašeno razvedenom pročelju s dva izdužena zvonika i povijenim zabatom središnjeg dijela, postavljenim pred volumen crkve poput kulise, no s odmjereno izvedenim detaljima arhitektonske dekoracije vijenaca, nadstrešnica, okvira, pilastara i kapitela. Ujedno je primjer odjeka tlocrtnih rješenja nastalih u krugu bečkih arhitekata zrelog 18. stoljeća. Iznutra je bogato opremljena kvalitetnim zidnim iluzionističkim oslicima (kojima se predočuju retabli oltara te oživljuje i urešuje svijetli prostor crkve) i vješto izrađenim drvenim inventarom iz vremena gradnje, što s arhitekturom čini zaokruženu cjelinu.
Fotoalbum
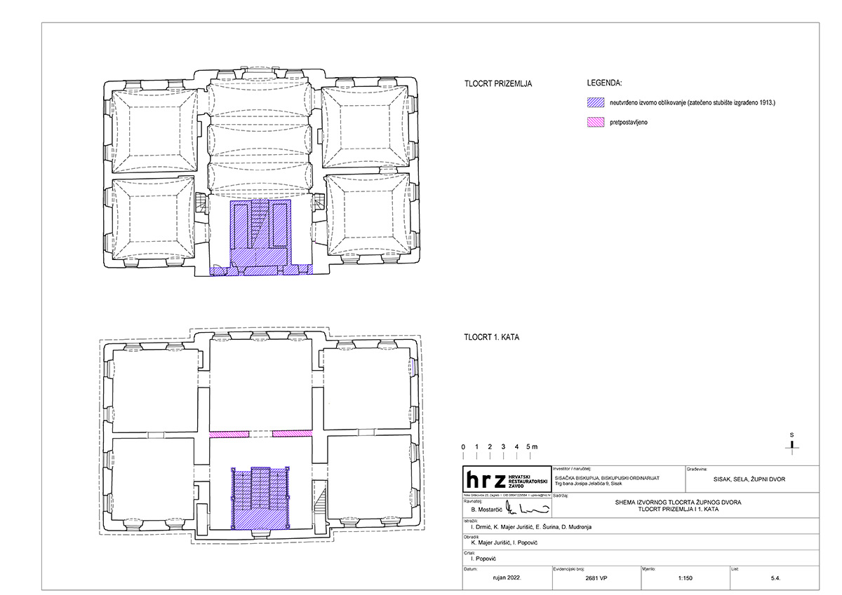
I župni dvor koji je sagrađen pokraj crkve zidana je čvrsta građevina (za razliku od tada uobičajenih drvenih gradnji) i odražava visoku kulturu ladanjskog stanovanja. Očuvan je gotovo u cijelosti, uz neke kasnije pregradnje koje nisu sasvim dokinule spoznaje o izvornom prostornom rasporedu i načinu oblikovanja pojedinih elemenata, u razmjerima primjerenima smještaju župnog ureda i stanovanja župnika. U prizemlju je bio župni ured i arhiva te prostorije za poslugu i kuhinja, a na katu četiri velike prostorije međusobno povezane središnje smještenim predvorjem do kojega je vodilo stubište.
Vanjština dvora jednostavnog je volumena, zaključena visokim četverostrešnim krovom, s tek nešto naglašenijim središnjim rizalitom glavnog i stražnjeg pročelja, simetrično artikulirana plitko istaknutim otvorima. Time je zapravo skromna i "smirena" arhitektura župnog dvora podređena, ali ipak u suglasju s raskošnom i naglašeno razvedenom vanjštinom župne crkve i njezinim osobitim tlocrtnim rješenjem. Obje građevine, uz nekadašnje gospodarske zgrade koje su još prvotno bile na župnom posjedu, svojim smještajem na zaravnatom terenu dominiraju okolinom. Stvorile su prepoznatljiv i dojmljiv akcent u vizuri Sela i primjer su sklada kasnobarokne i rokoko sakralne arhitekture s ladanjskom profanom baroknom gradnjom. (KMJ)